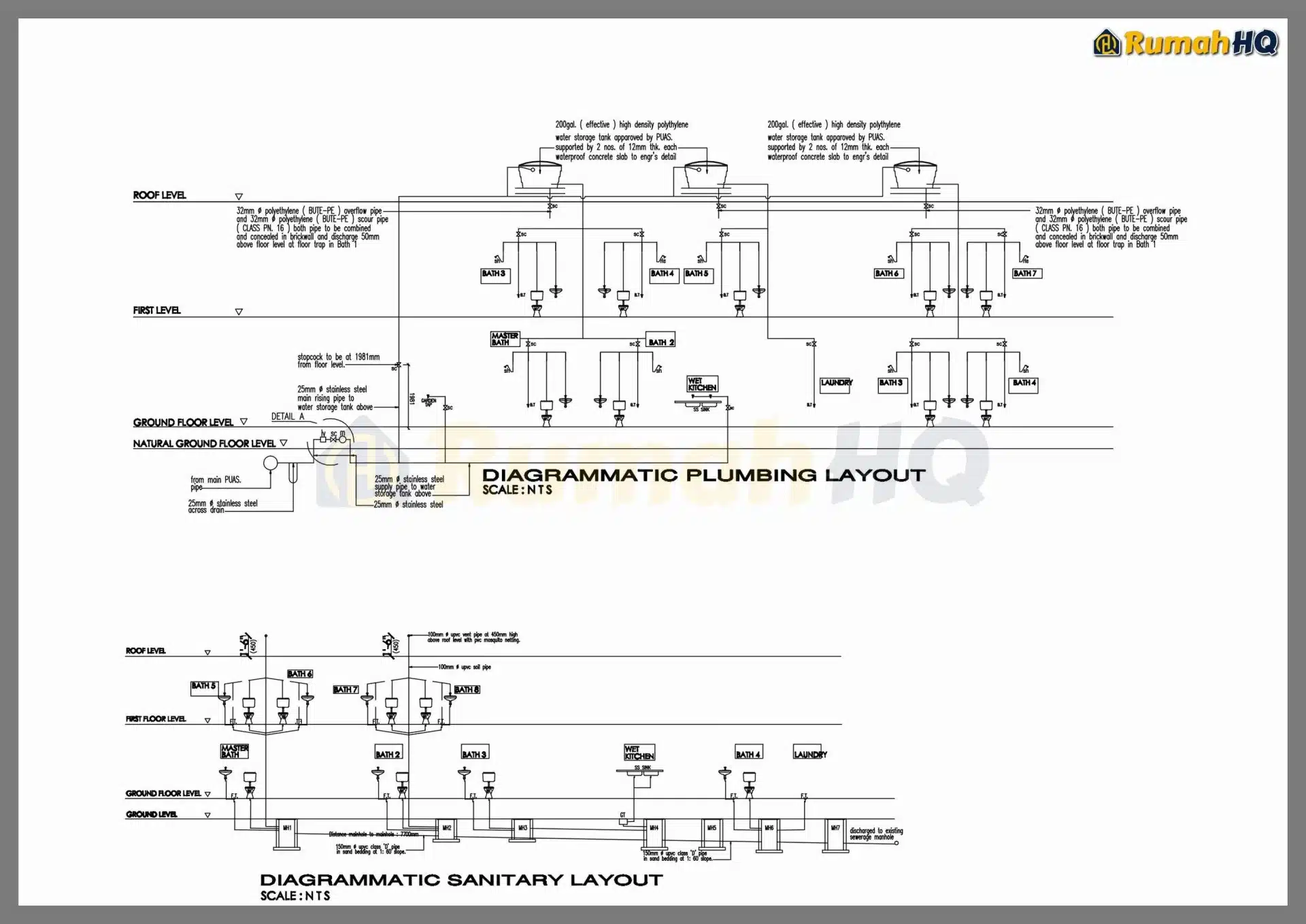
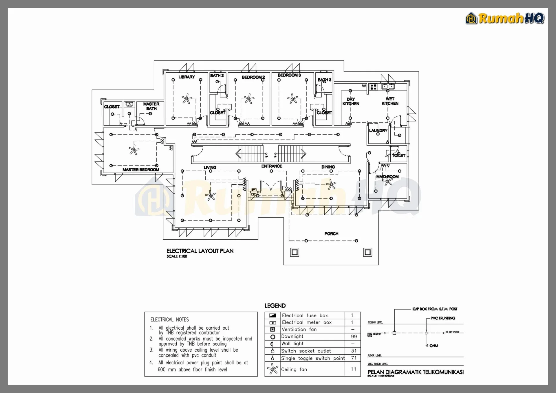
RHQ-D1-10
Design Rumah Banglo 1 Tingkat Eksklusif
RM 996,671
4,817 sqf
7 Bilik Tidur
8 Bilik Air
Sila hubungi kami untuk quotation rasmi secara PERCUMA.
Cepat, Download Full PDF Secara PERCUMA! 🎉
















Kami akan lukis ‘Custom Design’ untuk anda secara PERCUMA!

Proses Pembinaan Rumah
Berapakah Kos Bina Rumah Saya?
Pelan Rumah & 3D PERCUMA
Quotation PERCUMA
Dokumen Perjanjian PERCUMA
Konsultasi & Site Visit PERCUMA
Pakej Gold
Pakej Silver

Dapatkan Quotation Anda Sekarang!
Kami akan bina rumah berdasarkan budget yang anda tentukan.
Terima kasih, kami akan hubungi anda secepat mungkin.
Rumah 1 Tingkat Ataupun 2 Tingkat?
Kos ini merangkumi pembinaan struktur rumah.

Kos Pembinaan: RM170 psf

Kos Pembinaan: RM180 psf
Berapakah Luas Keseluruhan Rumah Anda?
Hanya Masukkan Angka, Tanpa Koma ( , ). Contoh: 1000
Apakah Jenis Pembiayaan Rumah Anda?
Bina rumah lebih mudah dengan fasiliti pembiayaan rumah.

Kos Tambahan: RM5 psf
Kos Tambahan: RM5 psf

Tiada Tambahan Kos

Tiada Tambahan Kos
Anda Perlu Mohon Kelulusan Pelan Bangunan?
Kelulusan ini wajib jika anda apply loan LPPSA, ataupun tanah anda berada di area bandar.

Kelulusan PBT Sehingga CCC: RM45,000

Tiada Tambahan Kos

Tiada Tambahan Kos
Sudah Ada Pelan Rumah Tersebut?
Kam boleh bantu untuk lukis pelan rumah untuk anda secara PERCUMA.

Jika upload tergendala, sila hantarkan ke RumahHQ@gmail.com

Meter Kekal Elektrik & Air
Ini adalah permohonan meter kekal selepas rumah siap dibina.

Meter Elektrik & Air: RM5,500

Tiada Tambahan Kos
Pakej Gold ataupun Pakej Silver?
Senarai penuh setiap Pakej Rumah akan dihantar ke email anda.

• Pakej Gold: RM30 psf • Bumbung Genting (Roof Tiles) • Lantai Jubin Seluruh Area • Pintu Solid Wood Bercermin 2 Daun • Tinggi Dinding 11′ • Table Top 12′

• Pakej Silver: RM20 psf • Bumbung Metal Deck • Lantai Jubin Seluruh Area • Pintu Solid Wood 2 Daun • Tinggi Dinding 10′ • Table Top 8′
Anggaran Kos Bina Rumah Anda Adalah :
Sila isi butiran berikut. Kami akan hantar quotation & senarai penuh spesifikasi ke email anda.
Ringkasan
| Deskripsi | Informasi | Kuantiti | Kos |
|---|---|---|---|
| Discount : | |||
| Total : | |||










